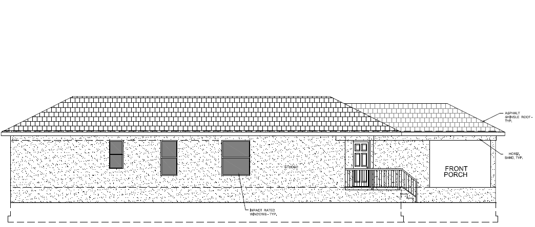
Proposed new homes
starts from $499,000 (2 bed & 2 bath) - 3 More similar houses Are coming soon.
Close to downtown off Lockwood Ridge Road, Sarasota, FL and beaches. Near UTC mall.
SOLD:3779 Brazilnut Ave, Sarasota, FL 34234
3769 Brazilnut Ave, Sarasota, FL 34234 In the market (new homes):
3908 Walnut Ave, Sarasota, FL 34234
3914 Walnut Ave, Sarasota, FL 34234


BERKSHIRE BLEND
CASTLE
TUSCAN
LEDGESTONE
PANEL
FIELDSTONE
RECTANGULAR
PATTERN
SHEET
MOSAIC
ARCHITECTURAL
SAWCUT


